Pubblicata in data 01/09/2008
Autore: Segreteria Abitare IN Sardegna
Bilocali e trilocali a pochi passi dalla splendida spiaggia di Budoni, a pochi passi dai servizi,.... Tutti indipendenti, con una veranda e barbecue attiguo. La situazione ideale per chi volesse lasciare la propria automobile a casa e godersi le vacanze a stretto contatto con la natura.
Planimetrie:
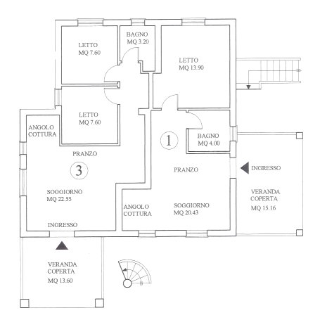
Piano terra 01

Piano terra 02

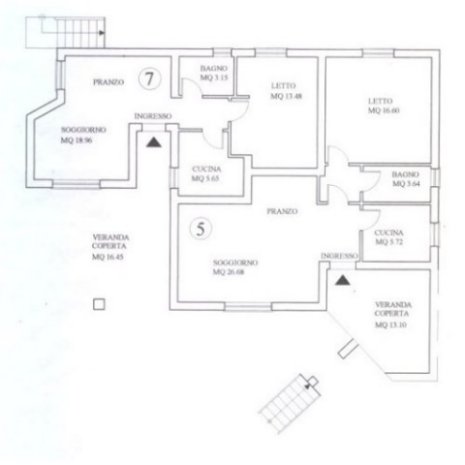
Piano primo 01

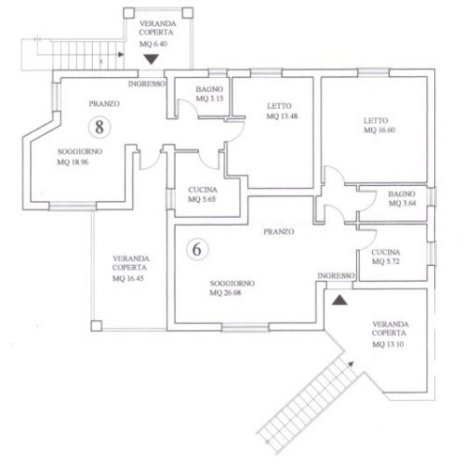
Piano primo 02

Dettagli:
Appartamento 121AF1: Bilocale ubicato al piano terra, è composto da una camera da letto, un soggiorno con angolo cottura, un bagno, una veranda. Consigliato per 4/5 persone.
Appartamento 121AF2: Bilocale ubicato al primo piano, è composto da una camera da letto, un soggiorno con angolo cottura, un bagno, una veranda. Consigliato per 4/5 persone.
Appartamento 121AF3: Trilocale ubicato al piano terra, è composto da due camere da letto, un soggiorno con angolo cottura, un bagno, una veranda. Consigliato per 6/7 persone.
Appartamento 121AF4: Trilocale ubicato al primo piano, è composto da due camere da letto, un soggiorno con angolo cottura, un bagno, una veranda. Consigliato per 4/5 persone.
Appartamento 121AF5: Bilocale ubicato al piano terra, è composto da una camera da letto, un soggiorno con angolo cottura, un bagno, una veranda. Consigliato per 4/5 persone.
Appartamento 121AF6: Bilocale ubicato al primo piano, è composto da una camera da letto, un soggiorno con angolo cottura, un bagno, una veranda. Consigliato per 4/5 persone.
Appartamento 121AF7: Bilocale ubicato al piano terra, è composto da una camera da letto, un soggiorno con angolo cottura, un bagno, una veranda. Consigliato per 4/5 persone.
Appartamento 121AF8: Bilocale ubicato al primo piano, è composto da una camera da letto, un soggiorno con angolo cottura, un bagno, una veranda. Consigliato per 4/5 persone.
- - - - - - - - - - - - - - - - - - Codice articolo: 121AF