Piccolo condominio in posizione strategica e panoramica.


Gli appartamenti offrono una gradevole vivibilità per posizione, esposizione e contestualizzazione.

  • Vicino all'aeroporto, all'ospedale Giovanni Paolo II, a diverse scuole (vedi mappa nella pagina dedicata).
  • A vantaggio dell'indipendenza, alcune unità, i piano terra e gli attici, sono libere su quattro lati
  • Ogni unità immobiliare è provvista di cantina e posto auto coperto
  • Tutte le unità abitative sono provvisste di isolato  termico e acustico
  • Ascensore.
  • Serramenti in PVC di colore bianco
  • Tutti gli appartamenti sono dotati di ipianto a pannelli solari fotovoltaici, al silicio inverter, per la produzione di energia elettrica da 1kw.
  • Abbinati all'impianto di produzione d'acqua sanitaria, pannelli solari con serbatoio di accumulo coibentato da 150 litri
 

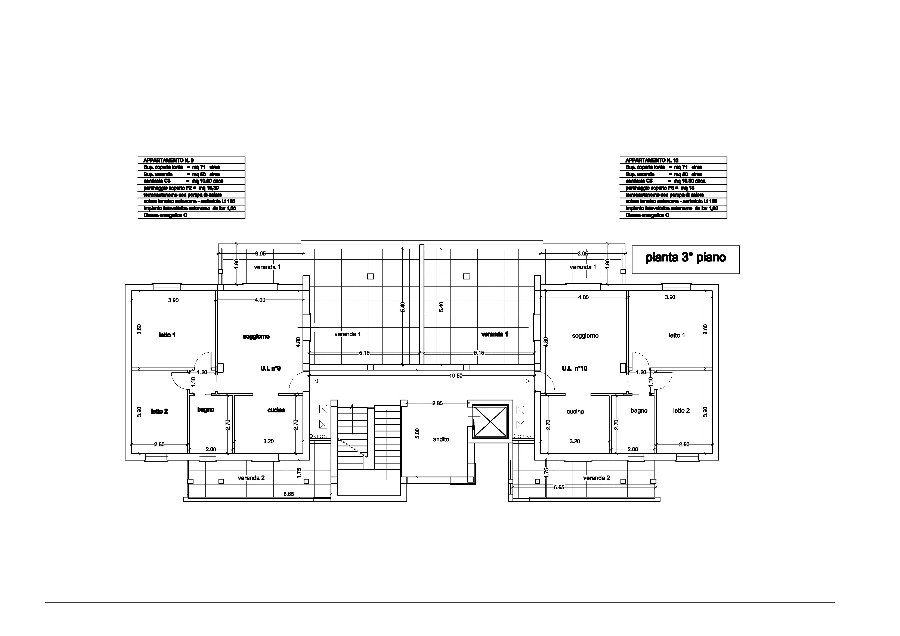
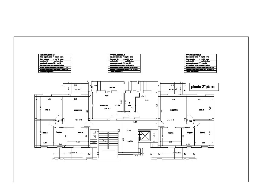
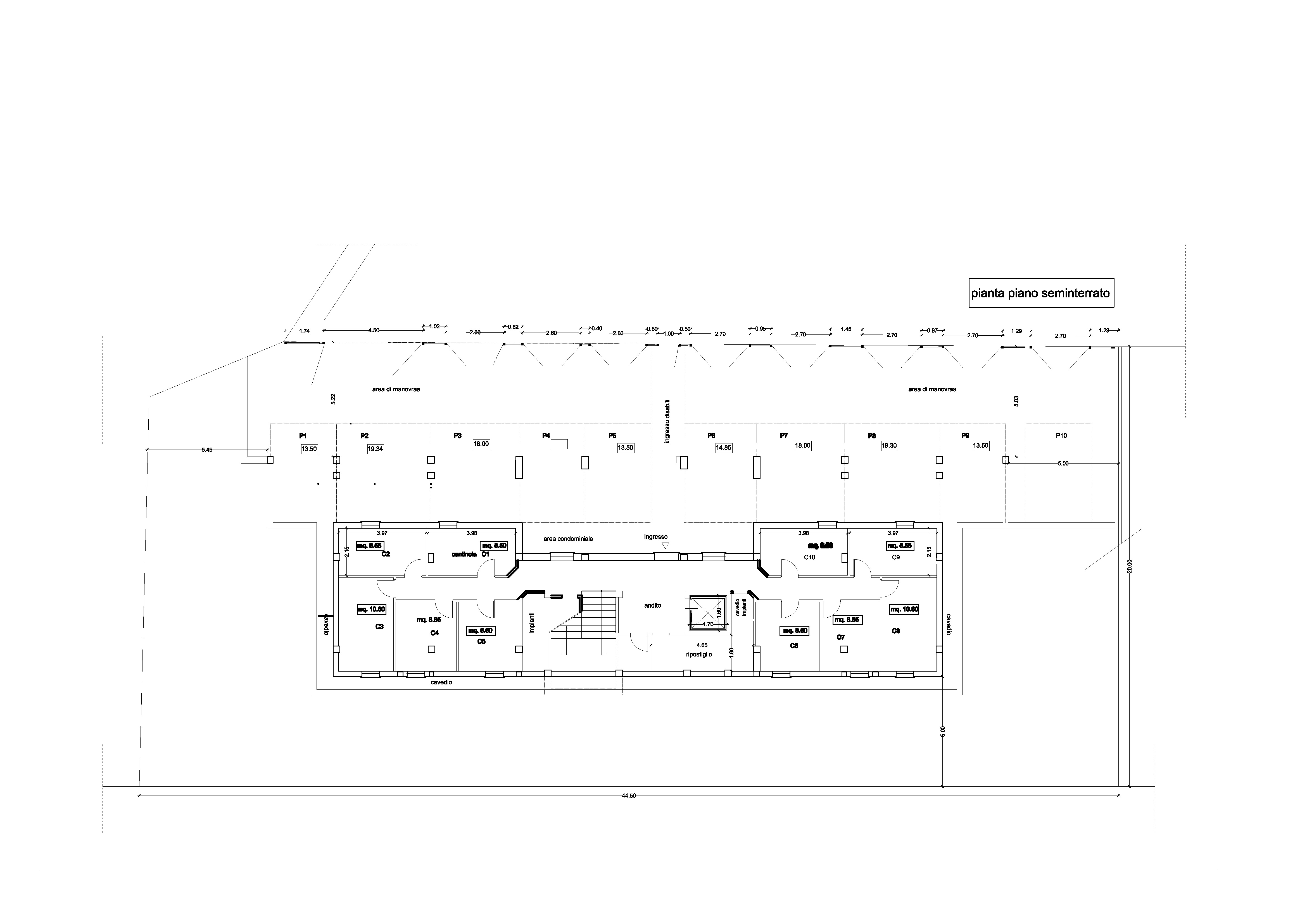
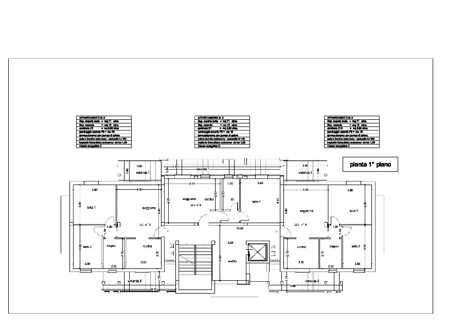
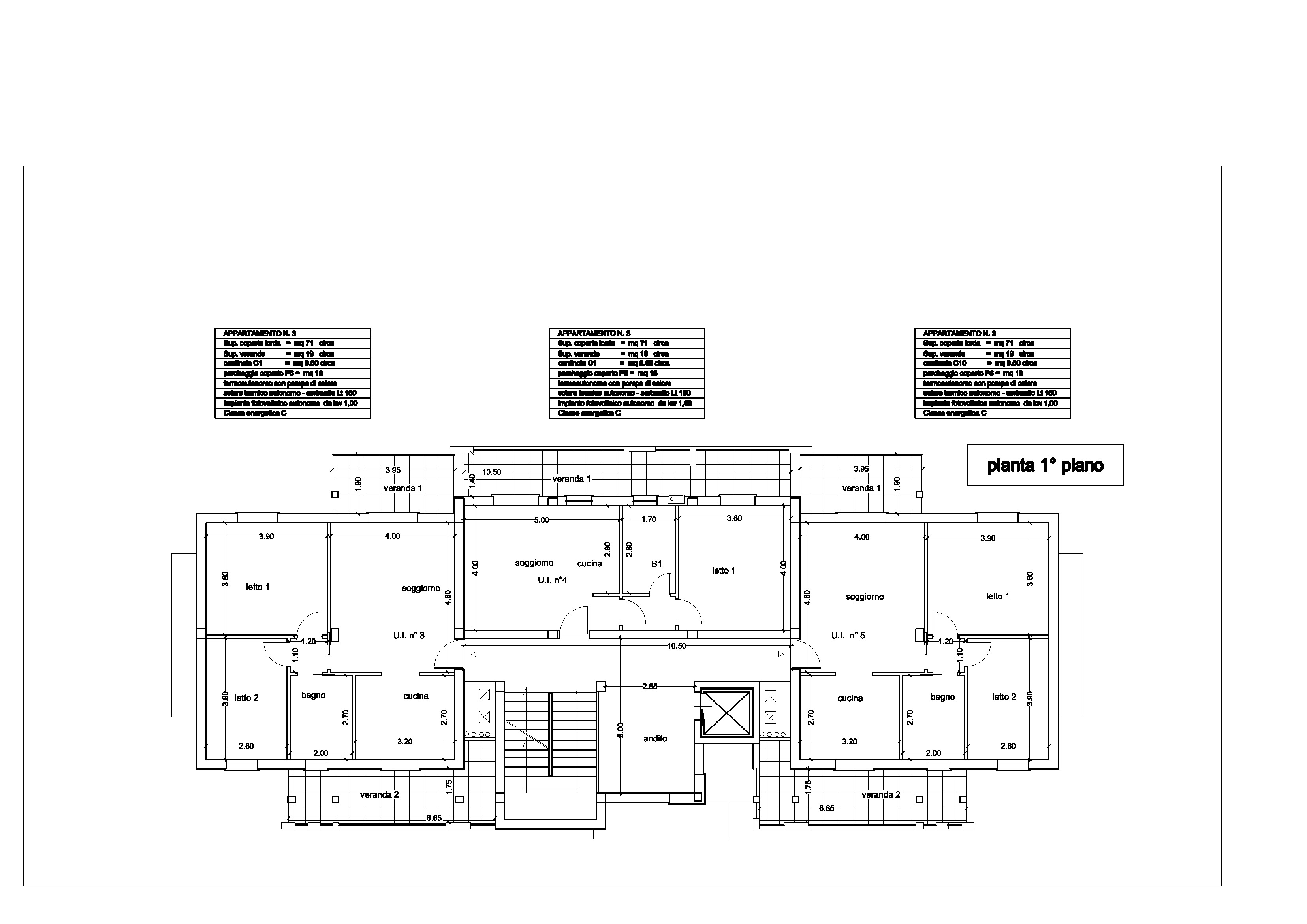
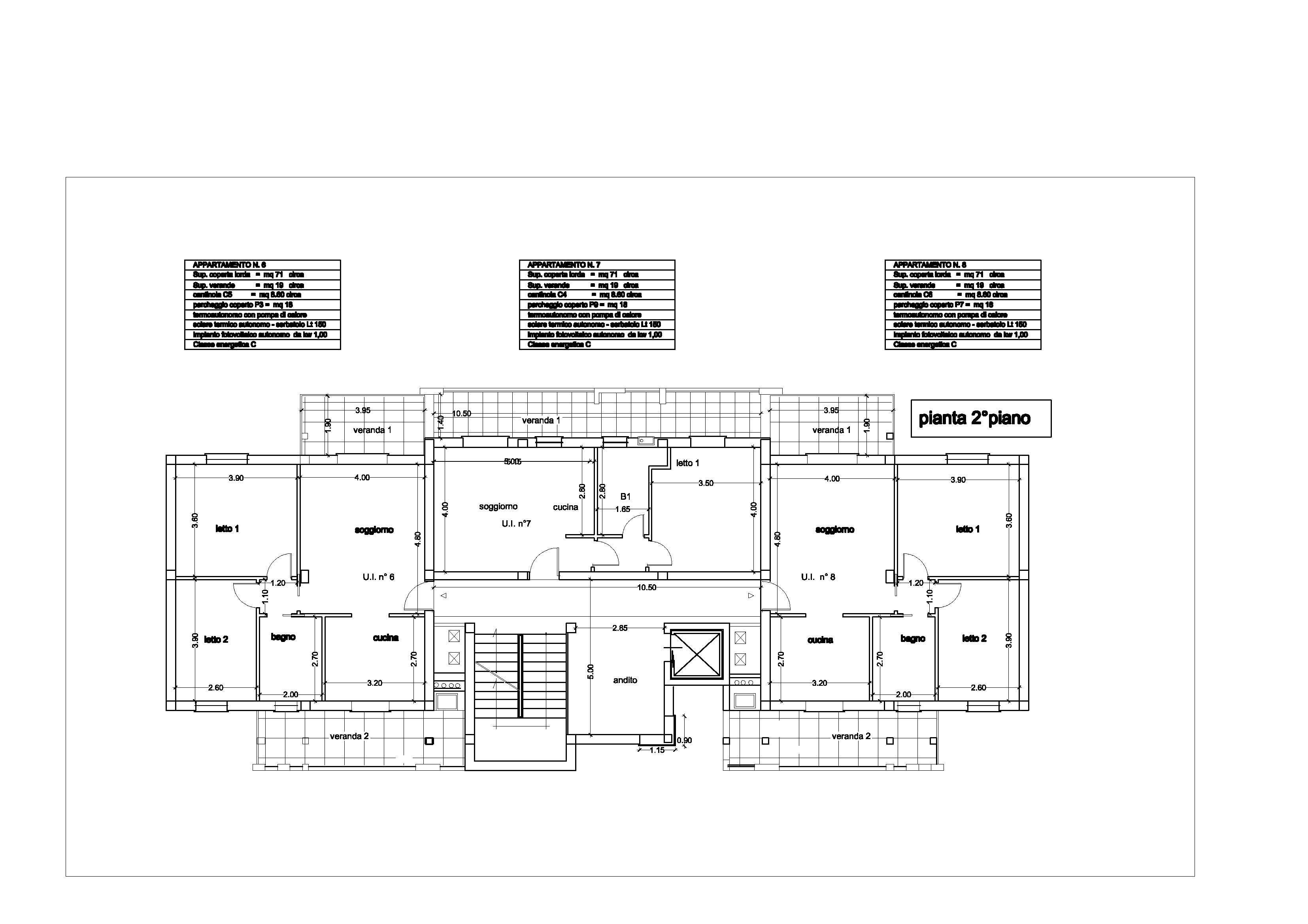
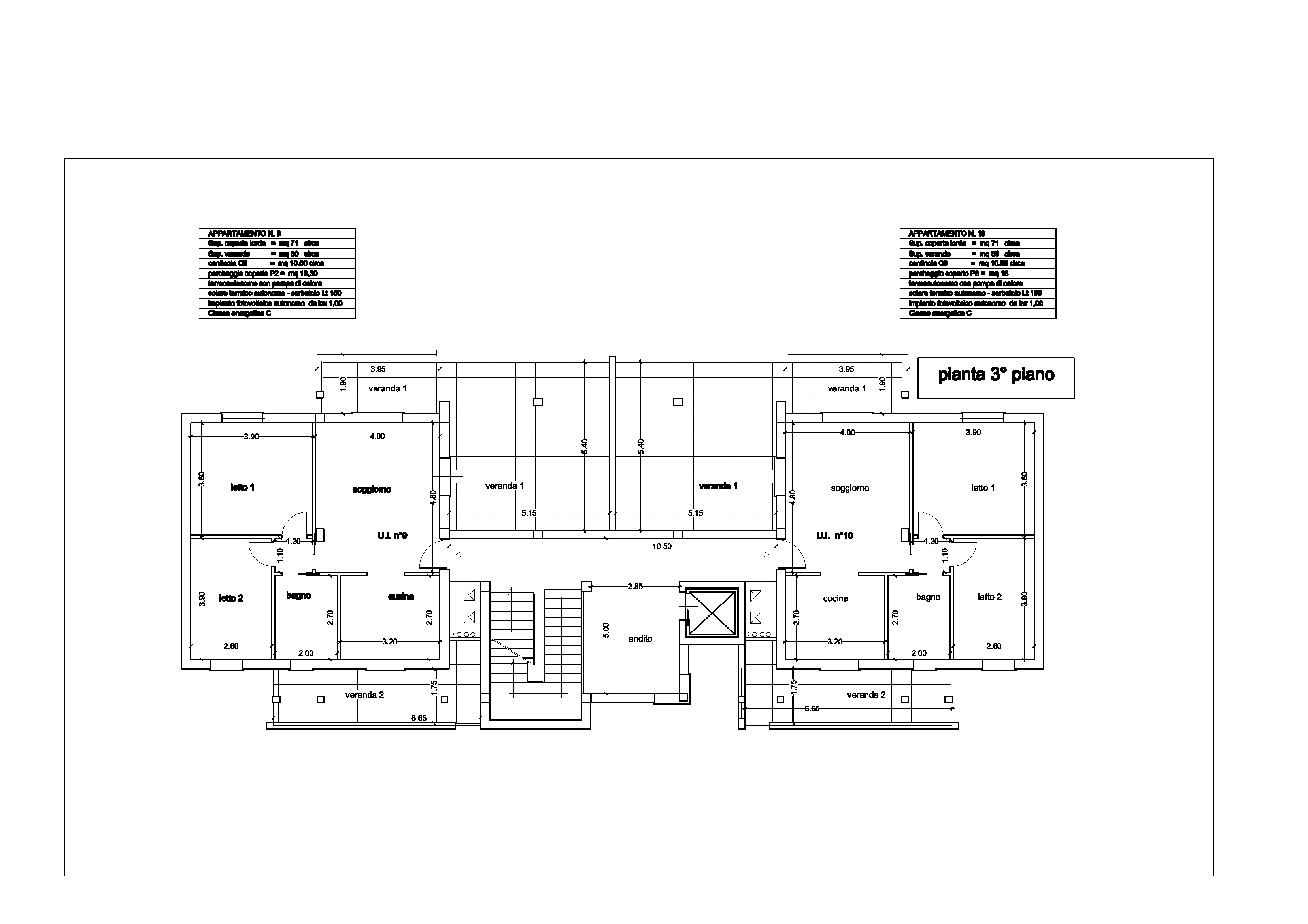
Piante (scorrere il puntatore per zoomare)

 

Pianta Piano Seminterrato


Pianta Piano Terra


Pianta Piano Primo


Pianta Piano Secondo


Pianta Piano Terzo con attico

 

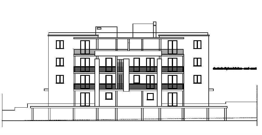
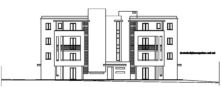
Prospetti