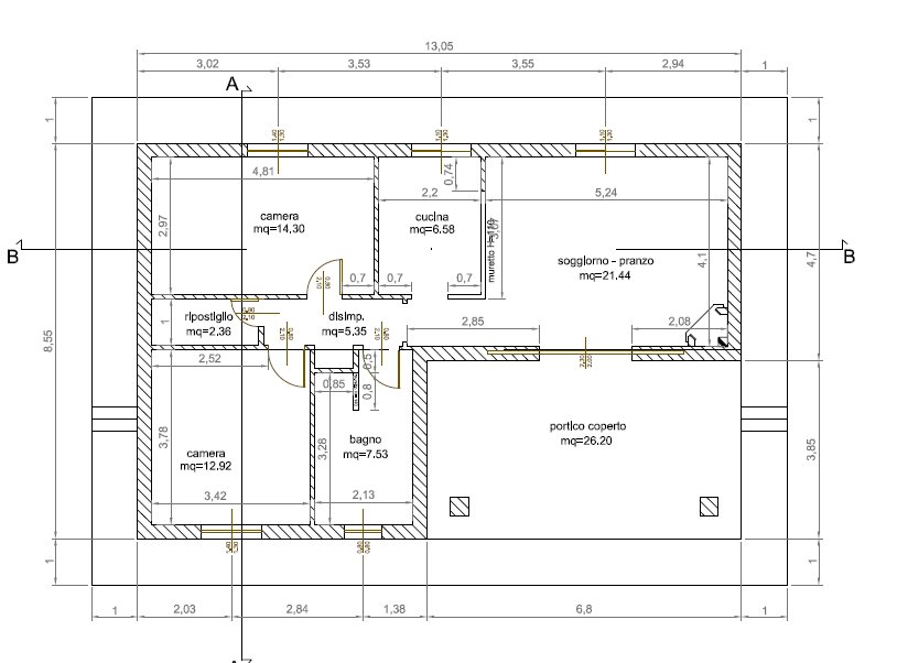
| La villetta (superficie lorda 83,22 mq portico escluso) è composta da ampio soggiorno con cucina separata, due comode camere da letto, un bagno, un ripostiglio. Nel soggiorno sarà predisposto l'angolo cottura nell'eventualità dell'esigenza di una terza camera da letto da realizzarsi utilizzando l'attuale cucina. La tipologia è una rivisitazione in chiave moderna del vecchio stazzo gallurese; realizzato su un unico piano, confortevole per dimensione, naturalmente rivisitato in base alle attuali esigenze non ultima quella relativa al riscaldamento realizzato a pavimento senza però tralasciare la tradizionale canna fumaria per un eventuale camino.
La coibentazione è realizzata a cappotto, il tetto è in legno impermeabilizzato, coibentato e ricoperto di coppi. |
|
 |
|
 |
|
 |
|
 |
|
 |
|
|
|